해외
작년 오늘(4월 25일), 네팔 지진이 발생했던 그날 네팔 지부 김대현 사무장은 네팔 포카라 지역에 있었습니다. 지진 소식에 새벽 찬 공기를 뚫고 진앙지 고르카로 달려간 그날부터 그는 죽음의 문턱에서 긴급구호를 펼치며 네팔인들과 동고동락했습니다.
네팔 지진 발생 1년을 앞둔 어느 날, 김대현 사무장을 만났습니다. 네팔에서 장기재건복구사업을 펼치는 중 잠시 서울을 방문한 그에게 지진 발생 1년이 지난 최근의 네팔 상황과 어려운 환경에서도 다시 희망을 만들어가는 이들의 생생한 이야기를 들어보았습니다.
네팔 지진 발생 1년을 앞둔 어느 날, 김대현 사무장을 만났습니다. 네팔에서 장기재건복구사업을 펼치는 중 잠시 서울을 방문한 그에게 지진 발생 1년이 지난 최근의 네팔 상황과 어려운 환경에서도 다시 희망을 만들어가는 이들의 생생한 이야기를 들어보았습니다.

오랜만에 서울에 오시죠. 현재 네팔에서 어떤 일을 맡고 계신가요?
굿네이버스 네팔 지부 고르카 지역에서 장기재건복구사업을 담당하는 사무장으로 일하고 있어요. 네팔에 처음 온 게 2012년이었으니 벌써 5년째에 접어드네요.
네팔에서는 얼마나 지내신 건가요?
만 4년 정도 되었어요. 첫 해외파견지라서 그런지 네팔에 애착이 커요. 네팔에서 이사를 많이 다녔는데, 1년에 한번 꼴로 이사를 한 것 같아요. 주로 외국인들이 별로 없는 시골 지역에서 살아 순박한 지역민들을 많이 만날 수 있었어요.

네팔 아이들과 함께
현지 근무 4년째 되던 해에 지진을 겪으셨네요. 떠올리고 싶지 않은 기억이겠지만 당시 상황을 묻지 않을 수 없는데요.
지진이 나던 날 저는 아내와 함께 포카라 지역에 있었어요. 이곳도 지진의 여파가 있었기에 밤새 공포 속에서 시간을 보냈지요. 다음날 새벽에 진앙지인 고르카로 달려갔어요. 고르카에서도 멀리 떨어진 시골 마을로 다시 1시간 반 정도 이동했는데, 가는 동안에도 도로가 유실되고 바닥이 흔들리는 걸 느껴야 했죠. 모두에게 참으로 힘든 시간이었어요. 굿네이버스는 긴급히 지역 정부, 단체와 미팅을 하고 어떻게 지원할 건지를 논의했어요. 그리고 긴급구호를 펼쳤습니다.

지진 당시의 피해 상황
굿네이버스가 진앙지인 고르카 지역에 구호 단체 최초로 긴급구호 물자를 배분하는 등 초동 대응을 신속히 할 수 있었던 이유는 무엇일까요?
굿네이버스 네팔 지부는 2013년부터 고르카에서 지역주민들과 관계를 맺고 사업을 진행해왔어요. 수도나 도시에 국한하지 않고 주민들과 더 밀접하게 관계할 수 있는 산간 오지까지 들어갔지요. 지진 발생 후 신속하게 지역민들의 요구에 대응할 수 있었던 건 그 때문이었던 것 같습니다.

PTSD 프로그램 운영관련 교사 회의
지진 발생 1년이 지났습니다. 최근의 네팔 모습, 많이들 궁금해하실 텐데요.
지난해 10월, 새 헌법에 반대하는 주민들이 국경을 봉쇄하는 바람에 인도에서 들여오던 석유와 가스 등 각종 물자의 수송이 중단되는 사태가 벌어졌어요. 네팔은 물자의 60%를 인도에 의존하는 터라, 네팔 전역이 한겨울에 석유, 생필품 부족 사태를 겪어야 했지요. 지진 복구가 끝나지 않은 상황에서 이런 문제가 발생해 힘겨운 시간을 보내야 했어요.
현재 네팔의 도시지역은 최소한의 복구가 진행되어 지진의 흔적을 찾아볼 수 없지만, 도시를 벗어나면 여전히 지진의 잔해들이 남아있어요. 그곳 사람들은 지진의 흔적들을 볼 때마다 그날의 기억들이 트라우마가 되어 되살아날 겁니다. 그래도 장기재건복구사업을 하며 조금씩 희망을 되찾아가는 모습을 보고 있어요.
현재 네팔의 도시지역은 최소한의 복구가 진행되어 지진의 흔적을 찾아볼 수 없지만, 도시를 벗어나면 여전히 지진의 잔해들이 남아있어요. 그곳 사람들은 지진의 흔적들을 볼 때마다 그날의 기억들이 트라우마가 되어 되살아날 겁니다. 그래도 장기재건복구사업을 하며 조금씩 희망을 되찾아가는 모습을 보고 있어요.

현재 담당 중이신 장기재건복구사업에 대한 설명을 부탁드립니다.
생존을 위한 초기 긴급구호 사업은 보통 2~3개월이면 끝나요. 실제로 초기 긴급구호를 끝낸 단체들이 대부분 네팔을 떠나더군요. 그러나 굿네이버스는 피해 주민이 재난 이전의 일상으로 복귀하고 자립할 때까지 이곳에 남기로 했습니다. 굿네이버스의 지역개발사업은 궁극적으로 주민의 자립을 지향하기 때문이에요.
지진이 있고 나서 학교에 가고 싶지만 그러지 못하는 아이들이 많았어요. 굿네이버스에서 무너진 교실을 활용해 방임 위기에 있는 아동을 보호하고 다양한 프로그램을 제공하는 아동친화공간(CFS)을 구축했지만 일시적이었지요. 아이들이 다시 학교에 갈 수 있는 환경을 만들어 주는 것이 이번 사업의 중요한 목표입니다. 현재 피해가 가장 컸던 고르카 지역에 보건소 4개와 학교 8개, 펄밧 지역에 1개 학교를 재건하는 사업을 진행하고 있어요.
지진이 있고 나서 학교에 가고 싶지만 그러지 못하는 아이들이 많았어요. 굿네이버스에서 무너진 교실을 활용해 방임 위기에 있는 아동을 보호하고 다양한 프로그램을 제공하는 아동친화공간(CFS)을 구축했지만 일시적이었지요. 아이들이 다시 학교에 갈 수 있는 환경을 만들어 주는 것이 이번 사업의 중요한 목표입니다. 현재 피해가 가장 컸던 고르카 지역에 보건소 4개와 학교 8개, 펄밧 지역에 1개 학교를 재건하는 사업을 진행하고 있어요.

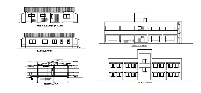
재건 중인 보건소(좌)와 학교의 건축도면
지속적인 지역개발을 고민하며 남아 있는 굿네이버스의 활동이 네팔 지역 주체들에게도 진정성 있게 전달되었을 것 같아요.
이번 장기재건복구사업의 학교 재건에서 굿네이버스가 총 40개 학교 중 규모 있는 8개 학교를 배정 받았어요. 지역 주체들에게 우리 사업의 전문성과 진정성이 좋은 평가를 받고 있다는 증거 지요.
지진 발생 당시 초동 대응을 위해 진앙지 고르카에서도 가장 깊숙한 지역으로 들어갔을 때, 그곳 주민들이 ‘굿네이버스는 이곳까지 와준 유일한 구호단체’라며 고마워 했습니다. 가슴 벅찬 순간이었어요.
지진 발생 당시 초동 대응을 위해 진앙지 고르카에서도 가장 깊숙한 지역으로 들어갔을 때, 그곳 주민들이 ‘굿네이버스는 이곳까지 와준 유일한 구호단체’라며 고마워 했습니다. 가슴 벅찬 순간이었어요.

고르카 지역에서의 물품 배분
장기재건복구사업을 함에 있어 굿네이버스만의 원칙, 기준 같은 게 있나요?
굿네이버스가 아닌 지역민들이 사업의 주체가 되도록 하는 것, 그리고 정부와의 협력을 중요하게 생각합니다. 현재 진행 중인 보건소 재건만 하더라도 부지 정리와 기초공사는 지역 주민들에게 맡겼어요. 결국 운영해나갈 사람은 그들이니까요. 다만 굿네이버스는 주민들과 파트너십을 잘 맺고, 펀딩이나 정부와의 소통에 있어서의 ‘다리’ 역할을 합니다. 과정이 더디더라도 동등한 파트너십을 맺는 것이 지역개발의 시작이라고 봐요.

건축 부지를 고르는 지역 주민들
생사를 넘나드는 현장에서 구호사업을 한다는 게 쉽지만은 않을 텐데요. 지난 1년을 돌아봤을 때 가장 힘들었던 순간은 언제였나요?
지진이 발생한 날부터 매일 밤 여진이 있었어요. 언제 집이 무너질지, 언제 죽음을 맞이할지 모르는 공포감 속에서도 파견직 직원들뿐만 아니라 네팔 현지 직원들도 최선을 다해 주었어요. 자신의 가족들이 피해를 입었음에도 불구하고 헌신적으로 긴급구호 활동을 펼친 그들의 노고가 없었다면… 당시 함께했던 동료들이 정말 고맙고 소중합니다. 힘들기도 했지만 한편으로는 평생 잊을 수 없는 기억이 될 것 같아요.

마지막으로 현장활동가로서 본인만의 ‘활동의 원동력’은 무엇인지 궁금해요.
현장 지원하는 일에서 특히 보람을 느껴요. 현장에서의 제 에너지원은 바로 ‘지역주민’이에요. 이 일을 하는 목적도 주민들이 스스로 주체가 되어 지역개발을 주도할 수 있도록 하기 위함이니까요.



